Piso en venta en Bretón de los Herreros
Resumen
- Actualizado en:
- marzo 26, 2026
- 3 Dormitorios
- 1 Baño
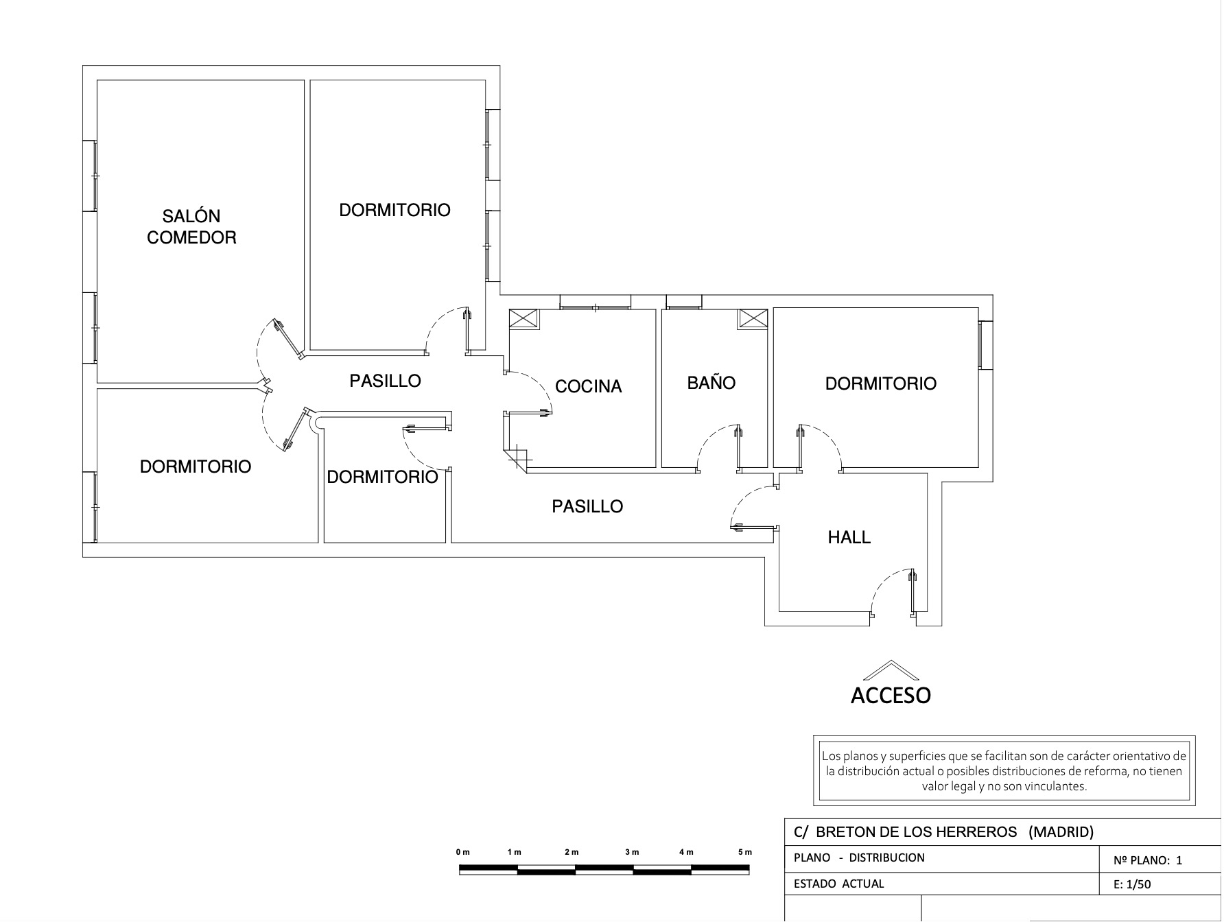
- 106 m2 construidos
- 990.000 €
- 4º exterior
Descripción
Piso en venta en Bretón de los Herreros: ORIENTACIÓN SUR, SIN MUROS DE CARGA Y LUZ TOTAL. TU PROYECTO A MEDIDA EN CHAMBERÍ.
Esta propiedad representa una oportunidad singular para quienes buscan una vivienda donde la luz y la flexibilidad arquitectónica sean las protagonistas. Con una superficie de 106 m2 construidos según Catastro (incluyendo elementos comunes), el piso destaca por su privilegiada orientación sur, que inunda sus principales estancias de sol directo durante todo el día y garantiza una calidez natural excepcional durante todo el año.
Ubicada en una cuarta planta exterior, el verdadero valor diferencial de esta vivienda reside en su estructura técnica: la ausencia total de muros de carga en el interior. Esta característica, sumada a sus tres amplios huecos de ventana a la calle, permite una libertad absoluta para plantear una reforma integral. Es posible eliminar tabiques para crear espacios diáfanos, integrar la cocina en el salón o redistribuir los dormitorios sin limitaciones constructivas. Actualmente, la vivienda se distribuye en un hall de entrada, una cocina independiente, tres dormitorios y un baño, ofreciendo una base de gran metraje sobre la que proyectar un diseño contemporáneo de alto nivel.
La carpintería exterior es de tipo climalit y el suelo es de tarima. La vivienda dispone de calefacción y agua caliente individual por gas natural, aportando autonomía y eficiencia energética. La finca, con un portal perfectamente conservado, cuenta con ascensor y ha superado la ITE favorablemente en 2022, lo que asegura una finca totalmente actualizada y libre de intervenciones estructurales pendientes. Gastos de comunidad de 63€ mensuales. IBI 609€ anuales.
Vivir en esta ubicación es disfrutar de la esencia de Chamberí en su tramo más exclusivo, entre Almagro y Ríos Rosas. La zona ofrece una comunicación inmejorable con los metros de Alonso Cano, Ríos Rosas y Gregorio Marañón, situándose a un paso del Paseo de la Castellana, Calle Ponzano y rodeada de la mejor oferta cultural, educativa y gastronómica de Madrid.
Contáctenos para obtener más información y concertar una visita.
La información detallada en este anuncio, incluyendo precios, superficies y datos técnicos, es meramente orientativa y no vinculante. El contenido no constituye una oferta contractual ni una memoria de calidades. Las imágenes presentadas pueden incluir recreaciones virtuales y mobiliario digital con fines ilustrativos sobre las posibilidades de reforma o decoración del inmueble.











